Description
- No Onward Chain
- Good Commuter Links
- Shared Ownership - 30% Share
- Very Well Presented
- Ground Floor Apartment
- One Allocated Parking Space
- One Double Bedroom
- Balcony
- Close To Local Amenities
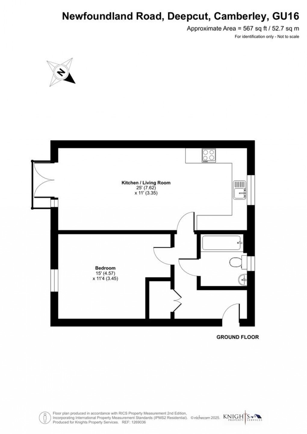
KNIGHTS PROPERTY SERVICES **NO ONWARD CHAIN**SHARED OWNERSHIP - 30% SHARE** For sale is this one bedroom ground floor apartment, which was built in 2023 and located on the sought-after Mindenhurst Development in Deepcut. The light and spacious property comprising; kitchen/living room, double bedroom and bathroom. The very well presented home, which is being sold with no onward chain, comes with one allocated parking space and is situated close to local amenities as well as Frimley Green village, Camberley town centre and good commuter links.
Entrance Hallway
Enter via door, storage cupboard and carpet flooring.
Kitchen/Living Room
Carpet flooring and doors leading to the balcony. Kitchen is fitted with a range of base and eye level units, sink, boiler, four ring gas hob, oven, extractor fan and space for; fridge/freezer and washing machine. Linoleum flooring.
Bedroom
Front aspect and carpet flooring.
Bathroom
Bath with shower, low level WC, wash hand basin, partly tiled walls and linoleum flooring.
Additional Information
We have been advised by the current owner that there is approximately 997 years left on the lease. The current service charge is approximately £88.99 per month. The rent for the remaining 70% share is £401.17 per month. Knights Property Services can not be held liable for any inaccuracy as we are relying on third party information.
Parking
One allocated parking space.
Council Tax
Band B.
Floorplan
EPC
To discuss this property call us:
Market your property
with Knights Property Services
Book a market appraisal for your property today.
