Description
- Three Double Bedrooms
- Driveway Parking
- Fantastic Cul-De-Sac Location
- Great Commuter Links
- Modern Bathroom & Shower Room
- Low Maintenance Garden
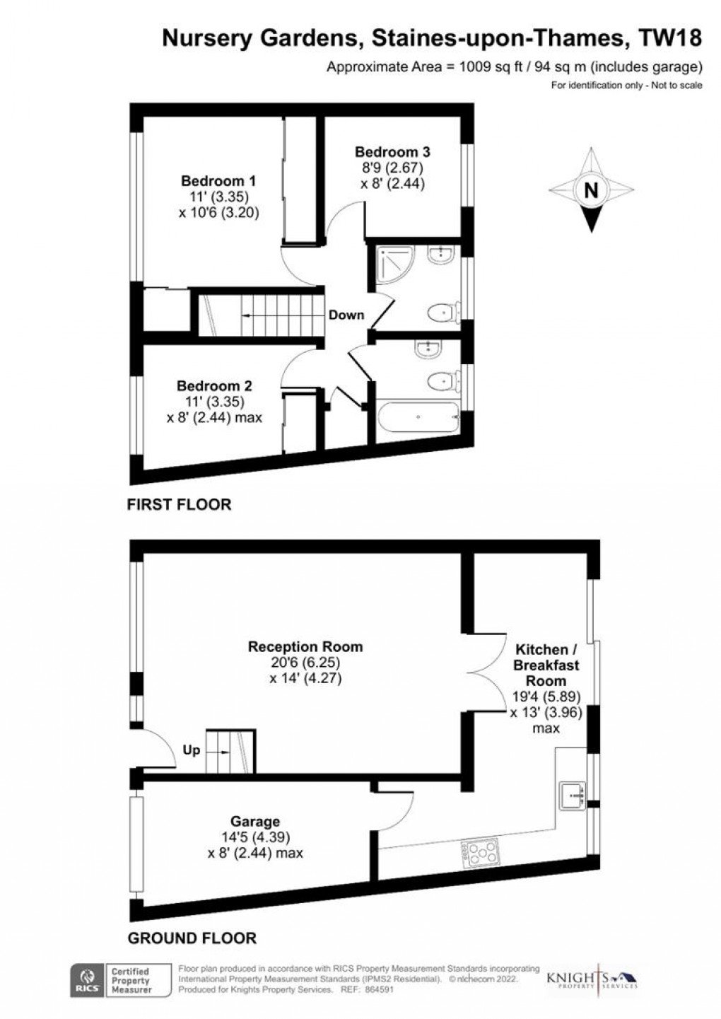
KNIGHTS PROPERTY SERVICES are pleased to offer to the market this excellently presented three bedroom property, situated within close proximity of local amenities. Internally the property boasts a bright and spacious reception room, modern kitchen/breakfast room, three double bedrooms, bathroom and shower room. The property further benefits from driveway parking, a garage and a low maintenance garden with external storage. Staines-upon-Thames is a prosperous riverside market town, with good rail links to London (Waterloo approx. 30 minutes) and good access onto the motorway network via the M25 leading onto the M3 and M4.
DIRECTIONS
Motorway Links
M25 Junction 13 - 2.9 Miles
Train Links
Staines Train Station - 1 Mile
Local Schools
Buckland Primary School - 0.7 Miles
The Matthew Arnold School - 1 Mile
Local Area
Located within close proximity of the town centre and train station.
Reception Room (6.25 x 4.27)
Enter via front door, stairs leading to the first floor, karndean flooring and neutrally decorated. Doors leading through to;
Kitchen/ Breakfast Room (5.89 x 3.96)
Range of base and eye level units, sink, oven, four ring gas hob, extractor fan and space for; washing machine, dishwasher and fridge/freezer. Partly tiled walls, tiled flooring and UPVC door leading to the rear garden.
First Floor Landing
Airing cupboard, carpet flooring and neutrally decorated.
Bedroom One (3.35 x 3.2)
Front aspect double bedroom, wardrobes with sliding doors, carpet flooring and neutrally decorated.
Bedroom Two (3.35 x 2.44)
Front aspect double bedroom, wardrobe with mirrored sliding door, carpet flooring and neutrally decorated.
Bedroom Three (2.67 x 2.44)
Rear aspect double bedroom, carpet flooring and neutrally decorated.
Shower Room
Wash hand basin, low level WC, shower cubicle, heated towel rail, tiled flooring and partly tiled walls.
Bathroom
Wash hand basin, low level WC, bath with shower attachment, heated towel rail, tiled flooring and partly tiled walls.
To The Rear
Low maintenance garden.
To The Front
Driveway parking and access to the;
Garage (4.39 x 2.44)
Power, lighting and up and over door.
Council Tax
Band E.
Floorplan
EPC
To discuss this property call us:
Market your property
with Knights Property Services
Book a market appraisal for your property today.
